Stan u izgradnji - Novi grad / Osijek
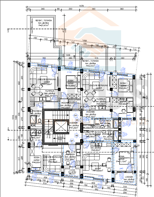
Na izuzetno atraktivnoj lokaciji prodaju se stanovi u izgradnji u stambenoj zgradi smještenoj u Divaltovoj ulici. Oglas se odnosi na stanove na drugom, trećem i četvrtom katu površine 45,27 m2 plus 6.07 m2 balkona što čini 46,78m2 obračunske površine. Stan se sastoji od dvije sobe, dnevnog boravka, kuhinje s blagovaonicom, hodnika, kupaonice i balkona.
Uz kupnju stana, moguća je (ali ne obvezna) kupnja garaže po cijeni od 20.000,00 eura ili parkirnog mjesta po cijeni od 12.000,00 eura.
Kupac ne plaća porez na nekretnine jer se stanovi nalaze u sustavu PDV-a, a kupoprodajna cijena ovisi o načinu plaćanja:
- 3.000,00 eura/m2 za 90% iznosa kupoprodajne cijene
- 3.200,00 eura za 50% iznosa kupoprodajne cijene
- 3.500,00 eura/m2 za 20% iznosa kupoprodajne cijene
Kvalitetna gradnja i odlično isplaniran rasporeda prostorija, kako bi se maksimalno iskoristio prostor, garancija su zadovoljstva kupaca bilo za stanovanje ili za investiciju/najam. U zgradi će biti ugrađen lift, a završetak radova i useljenje je predviđeno za proljeće 2028.
Zgrada će imati ukupno 19 stanova:
- tri u prizemlju od 27,12 m2 do 60,88 m2 (navedene površine su bez terase/loggie)
- četiri stana na prvom, drugom, trećem i četvrtom katu od 26,78 m2 do 45,27 m2 (navedene površine su bez terase/Loggie)
U suradnji s geodetskim i odvjetničkim uredom provjeravamo sve nekretnine, garantiramo sigurnost i zadovoljstvo svim našim klijentima te bezbrižnu potragu za novim domom.
Detaljnije informacije o nekretninama možete dobiti dolaskom u ured ( Ul. Hrvatske Republike 43, Osijek ), na kontakt telefon 098 682 521 ili na mail pavo@fidus.com.hr
Više nekretnina pogledajte na www.fidus.com.hr


